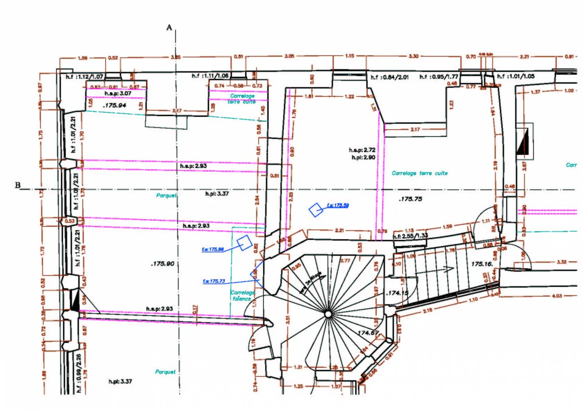
Réalisation de plans d'intérieur, façades et coupes au 1/50ème

Equipé de 3 scanners 3D dont un mobile, le CABINET PERRAUD a mis en place une méthodologie permettant de garantir les dimensions exactes du bâtiment tant en planimétrie qu'en élévation. Un soin tout particulier est apporté à l'empilage parfait des différents niveaux par la mise en place de croix de calage et d'un référentiel unique sur chacun des plans. Cette précaution garantit la faisabilité du percement de cages d'escalier ou d'ascenseur par exemple.
Les plans sont dessinés sur AUTOCAD 2020 et COVADIS à partir du nuage de points assemblés.  Tous ces logiciels sont sous maintenance annuelle.
Une visite virtuelle en 3D colorisée est également fournie gratuitement avec le logiciel adéquat. Cette outil apporte une vison réelle des éléments qui ne figurent pas forcément sur les vues en plan (interrupteur, balustre ...)
Nous écrire
Les champs indiqués par un astérisque (*) sont obligatoires
Partager :
À découvrir
Nos dernières annonces
Mesurage et certificats de Surface

Mesurage et certificats de Surface

Le CABINET PERRAUD est spécialisé pour le mesurage et la garantie de toutes les surfaces du bâti.
En savoir plus
Maquette Numérique 3D de bâtiments industriels - BIM

Maquette Numérique 3D de bâtiments industriels - BIM

A partir de relevé scanner 3D, le CABINET PERRAUD est en mesure de créer une maquette numérique 3D du bâtiment
En savoir plus